地址:广东省惠州市
电话:13610446757
邮箱: 512946718@qq.com
惠州市润昊产业运营服务有限公司
水电电梯办公室停车场宿舍食堂
534.6元/月
所在区域: 紫金 - 紫金
详细地址: 东莞市---东莞市
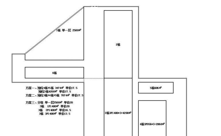
| 厂房类型暂无数据 | 建筑面积18000㎡ |
| 起租期面议 | 起租面积暂无数据㎡ |
| 押付面议 | 可办环评是 |
| 租赁方式整租 | 详细地址东莞市---东莞市 |
| 楼层个人厂房、可办公、精装修、工业园、超大空地 |
凤岗13元0公摊重工业厂房仓库2000平起出租,一楼高7米
桥头原房东独门独院标准厂房加单一层钢构厂房出租,可以分栋租
寮步原房东全新25300平方厂房出租,单层2530平方起分租
厚街镇汀山村新出标准独院13000平方厂房出租,水电费自己交
寮步花园式独院厂房出租一手房东15000平米形象好空地大
寮步新出原房东标准独院厂房可隔院中院可办环评易招工高速路口
大岭山原房东标准独院厂房出租 13000平大小可分
城区豪华装修写字楼出租适合办公培训健身美容等个行业
南城雅园附近独院15000平,600平起租超大空地
大岭山全新科技园标准原房东厂房500平米起出租
8元电商仓库物流园塘厦红本独院45000平带卸货平台厂房出租
水乡片区滴水15米高单一层出租 带一万五空地
常平10米高原房东钢构独门独院厂房出租2万平方,可分租
塘厦独栋8000平!一楼楼上1000至5000平独院厂房出租
东坑靠松山湖500平起全新高新产业园电商物流仓厂房仓库出租
松山湖新出国有双证独院厂房150000平方,起分7000平方
政府项目 智盈科技园 全新高标厂房出租可环评 720
上市公司集团分租全新厂房五证齐全,花园式厂房,价格16元起