佛山
热门城市: 深圳 |  东莞 |  惠州 |  佛山 |  广州 |  中山 |  河源 | 
24小时咨询热线:13610446757

佛山西站高铁站旁,全新50年产权厂房出售,首付2成

3000㎡
建筑面积

所在区域: 南海 - 南海

详细地址: 南海深圳科技园佛山科创园佛山西站高铁站旁

基本信息

结构类型厂房厂房层数5层
厂房面积3000平米厂房价格面议
环评独院燃气蒸汽工业用地厂房位置南海深圳科技园佛山科创园佛山西站高铁站旁
厂房结构厂房消防等级丁类
厂房售价面议

详细介绍

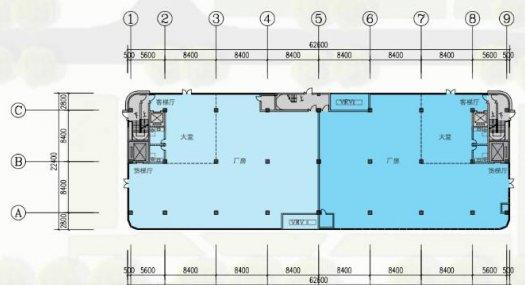
项目位于佛山西站枢纽新城,南临佛山西站,西靠环站东路,东北向沿兴业路,佛山西站枢纽新城依托佛山西站粤港澳大湾区西部客运主枢纽优势,叠加内联外通高速路网,打造“小时”+“零换乘”湾区生活工作圈。分钟即可达到深圳。(分钟到广州,分钟到香港,分钟到澳门、珠海)区域内八条轨道贯通,高铁(贵广高铁、南广高铁)+城际轨道(广佛肇城际、广佛环线)+地铁(佛山地铁号线、号线、号线,广州地铁号线)。项目离中心城区约分钟车程,分钟到金融高新区,分钟到物流园,分钟内有多个材料交易中心,配套完善的生活区。(一)标准双拼厂房:层户型的一个单元总面积约为?方,两单元打通共约?方。厂房结构:()首层高为.米,首层荷载T每平方,第二、三、四层高为.米,荷载.T每平方,第五层为.米,荷载.T每平方。()已经预留电梯井,可根据自身实际情况安装。(二)层总面积约—方。厂房结构:()首层高为.米,首层荷载T每平方,第二、三、四层高为.米,荷载.T每平方,第五层为.米,荷载.T每平方。()已经预留电梯井,可根据自身实际情况安装。(三)分层厂房:层总面积约—方,分层出售。厂房结构:()首层高为.米,首层荷载T每平方,二楼以上.米,二层荷载T每平方,三层以上荷载.T每平方。()配备两货两客电梯,T货梯,T客梯。

实物图片

佛山西站高铁站旁,全新50年产权厂房出售,首付2成 佛山西站高铁站旁,全新50年产权厂房出售,首付2成 佛山西站高铁站旁,全新50年产权厂房出售,首付2成 佛山西站高铁站旁,全新50年产权厂房出售,首付2成 佛山西站高铁站旁,全新50年产权厂房出售,首付2成 佛山西站高铁站旁,全新50年产权厂房出售,首付2成
推荐厂房