地址:广东省惠州市
电话:13610446757
邮箱: 512946718@qq.com
惠州市润昊产业运营服务有限公司
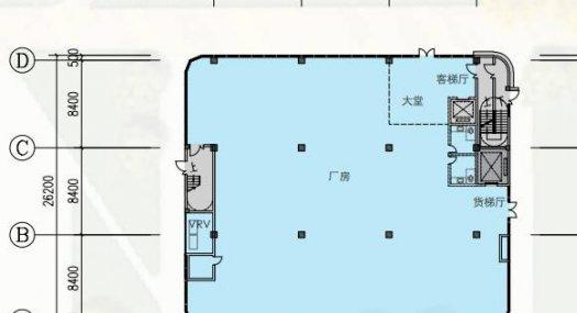
| 结构类型厂房 | 厂房层数5层 | |
| 厂房面积5000平米 | 厂房价格面议 | |
| 环评独院燃气蒸汽 | 厂房位置荔湾深科创智谷佛山西站高铁站旁 | |
| 厂房结构厂房 | 厂房售价面议 | |
中国光谷核心,年收益率13%,资产增值200-300%
出售佛山一环南延线出口全新厂房 50年独立产权
广州黄埔 黄埔开发区内5088㎡ 不动产权47年厂房出售
广州从化 105国道独院8亩厂房出售层高8米 跨度14米 配电50KVA 独院天车27吨 有蒸汽 有燃气 可环评
【出售】广州从化8亩厂房出售
广州番禺 7155㎡ 框架厂房租售配电200KVA
广州从化 鳌头镇龙星工业园6667㎡ 土地出售