中山
热门城市: 深圳 |  东莞 |  惠州 |  佛山 |  广州 |  中山 |  河源 | 
24小时咨询热线:13610446757

中山中山市 濠江路16号70000㎡ 厂房出售层高6.5米 跨度14米 配电70KVA

70000㎡
建筑面积

所在区域: 中山市 - 中山市

详细地址: 中山市火炬开发区濠江路16号

基本信息

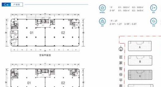
结构类型厂房厂房层数5层
厂房面积70000平米厂房高度6.5米
配电容量70KVA厂房价格290万元
环评独院燃气蒸汽工业用地厂房位置中山市火炬开发区濠江路16号
厂房结构厂房消防等级丙类
单层面积930平米空地面积24000平米
厂房跨度14米厂房柱距10米
货梯承重5吨地面承重1.2吨
厂房售价290万元

详细介绍

实物图片

中山中山市 濠江路16号70000㎡ 厂房出售层高6.5米 跨度14米 配电70KVA 中山中山市 濠江路16号70000㎡ 厂房出售层高6.5米 跨度14米 配电70KVA 中山中山市 濠江路16号70000㎡ 厂房出售层高6.5米 跨度14米 配电70KVA 中山中山市 濠江路16号70000㎡ 厂房出售层高6.5米 跨度14米 配电70KVA 中山中山市 濠江路16号70000㎡ 厂房出售层高6.5米 跨度14米 配电70KVA
中山厂房出售推荐
推荐厂房