惠州厂房出售
热门城市: 深圳 |  东莞 |  惠州 |  佛山 |  广州 |  中山 |  河源 | 
24小时咨询热线:13610446757

惠州惠阳新圩10590㎡ 框架厂房出售层高7.2米 可以单层卖

10590㎡
建筑面积

所在区域: 惠阳 - 惠阳

详细地址: 厂房特色:可办环评

基本信息

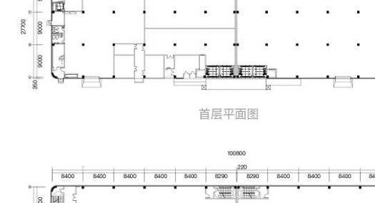
结构类型框架厂房厂房层数6层
厂房面积10590平米厂房高度7.2米
配电容量380KVA厂房价格500万元
环评独院燃气蒸汽工业用地厂房位置惠阳粤浦科技智谷惠阳新圩红卫村
厂房结构框架厂房单层面积1172平米
厂房柱距9米货梯承重3吨
地面承重3吨厂房售价500万元
厂房特色可办环评

详细介绍

【定位】聚焦智能制造、电子信息等科技行业,将打造成湾区聚合企业总部、科技研发、中试转化等功能为一体的智造总部示范平台。【土地性质】年产权国土红本,M工业用地【预计交付日期】年月【占地建筑面积】占地面积约亩,规划总建筑面积约万㎡其中一期占地.万㎡,建面万㎡,容积率.【一期产品类型】整栋厂房栋、高层厂房栋【用电】V;w㎡(待定)【交易方式】一次性付款分期付款银行按揭【开发单位】惠州粤浦润企实业有限公司【税收区间】元㎡【面积】+㎡双拼分层,总楼层F【层高】F:.m;F:.m【货梯】T客梯台,T货梯台【承重】F:T;F:KG;F:KG【柱距】*m,最大进深m【卸货平台及吊装口】根据客户需求预留客梯井、卸货平台及预留吊装口。

实物图片

惠州惠阳新圩10590㎡ 框架厂房出售层高7.2米 可以单层卖 惠州惠阳新圩10590㎡ 框架厂房出售层高7.2米 可以单层卖 惠州惠阳新圩10590㎡ 框架厂房出售层高7.2米 可以单层卖 惠州惠阳新圩10590㎡ 框架厂房出售层高7.2米 可以单层卖 惠州惠阳新圩10590㎡ 框架厂房出售层高7.2米 可以单层卖 惠州惠阳新圩10590㎡ 框架厂房出售层高7.2米 可以单层卖
惠州厂房出售厂房出售推荐
以下是惠州厂房出售惠阳 惠阳 8000 - 12000㎡的厂房信息可能会符合你的需求
推荐厂房